
項目名稱:景粼玖序
項目地址:重慶市
業主單位:龍湖集團
景觀面積:20000㎡
景觀設計:HWA安琦道爾
設計人員:鄒張榮、饒品金
文字來源:HWA安琦道爾
重慶
以江城、霧都聞名
又以山城揚名
是大自然最為驕傲的作品
當
設計師的自然設計
與這座城市
碰撞
又會產生怎樣的化學反應
2018年夏初,龍湖地產通過25年對都市生活進化趨勢得思考,傾情推出景粼玖序,將自然搬進城市,打造重慶宜居住宅。
設計師也一直在思考如何將住區融入自然,體現森林之家的概念。最終通過多方合作,為重慶帶來新的身份——森林重慶。
森 林 重 慶
『天空之眼』

入口展示面是一片寬闊的鏡面水池
倒映售樓處的建筑
同時
倒映著山城的天空
倒映著自然生態的面貌
更倒映著項目的內心
彰顯著對于自然生態的致敬


『奇異隧道』

穿過入口進入奇異隧道
它有著把人變小的“魔力”
跟隨著燈帶的方向
仿佛進入時空秘境
它的盡頭
是為您打造的“愛麗絲仙境”般的奇幻境地

『時空之眼』

通過時空之眼探索時空和自然
感知時光的流轉
空間的交錯
將人們從喧囂都市帶進自然之境
奠定了設計語言的簡潔與純凈
『漫步云端』

挑臺與自然親密無間的擁抱
運用霧噴與自然地勢
營造天上仙境
體驗漫步云端
手可摘星辰的奇妙之旅
『種夢花池』

花池抬地而起
漂浮云際
墜入花海
隨手種下一顆種子
在綠野仙蹤的“森林”中發芽生長
長出夢想之花
『大地之脈』

貫穿項目的生態雨水花園
仿佛置身在熱帶雨林中
感受大地的脈搏
感受自然的呼吸

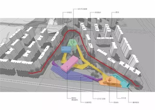
設計要點
設計師實地勘探后,發現本案的地形出現一個約40m高差的深坑,加上重慶本身復雜多變的地形,這對于設計及后期施工來說是一個巨大的難度。
深坑探秘
方案一
在第一稿方案中,設計師首先嘗試利用現有基地條件,將深坑保留,設計出一個深坑互動裝置。
同時在周邊區域打造出一個圍繞深坑的環形步道——“樹梢漫步”,既起到觀景平臺的作用,又增強示范區互動性。

自然的肌理
方案二
在第一稿方案匯報后,由于市政原因,基地在建設前期會將深坑填平。這意味著“深坑探秘”方案將無法實現。
設計師執著于基地有利的高差先天條件,將基地右側打造成自南向北、由高到低的帶狀親水區域,從而形成疊水效果。

親水區域的東側后期將是大區的施工區域,且景觀空間有限,因此設計師設置了一塊巨形投影屏幕,打造出一個“星空劇場”,增強示范區體驗感,并結合圍板與水杉林遮擋住嘈雜凌亂的施工環境。
在親水區域的另一側結合高差,以鳥類羽毛為靈感,打造出具有視覺沖擊的特殊肌理,以此敬畏自然。

花池種夢
方案三
由于回填可能引起的沉降以及施工的難度和成本,第二輪方案也未能實現。
本輪方案結合現場條件設計了大小各異,形態統一的花池。設計師稱之為“種夢花池”——種下一顆種子,終會長出夢想之花...


花池盡頭,設置一個觀景平臺,訪客不僅可以在此駐足停歇,也可步入挑空的下沉空間內,回望整個示范區景觀。從遠處眺望,花池拾地而起,漂浮天際。

經過前期磨合之后,設計師主要針對設計的落地性和施工的可操作性進行了細節深化調整,經多方合作溝通,最終打造了現在的“景粼玖序”。


戶外園林可采用唯格2cm石英磚,磚胚致密無孔,吸水率低于0.1%,抗污性強,長期在戶外使用,可避免水漬、返堿等問題,長時間保持園林美觀,降低后期維護成本。
本文來自HWA安琦道爾,版權歸原創作者所有。十分感謝作者的悉心編寫。推文僅供分享不做任何商業用途。如若圖片資源侵犯您權益,請及時與我們聯系,我們將第一時間做出處理。
下一篇:制勝陶瓷終端市場,不可不看
上一篇:陶瓷十大品牌有哪些?
相關資訊
轉載本站文章圖片,必須署明來源搜陶網(www.buah4dcuan.com)外地站點加盟熱線:0757-82770008,QQ99880500 本站律師顧問:廣東中天鼎盛律師事務所:0757-93289933
家居產品導購QQ:632599208 找磚網全國家居經銷商Q總群:52515767 中國家居網絡媒體Q總群:69235136全國家居職業經理總群86188297 協會支持:佛山市禪城區陶瓷衛浴行業協會
版權所有:佛山市家美文化傳媒有限公司粵ICP備11050138號 HTML網站地圖